Full Specifications and Features of this House Plan
House Style
Hidden Pitched Roof
House Dimensions
Width: 32 Meters
Depth: 15 Meters
Total House Area
368 Square Meters
Recommended Plot Size
38 x 31 meters or
124 x 100 Feet
Roof Features
Hidden Pitched Roof
Galvanized sheet metal roofing
5 t0 10 Degrees Pitch
Waterproofed Concrete Gutter system

Front Porch
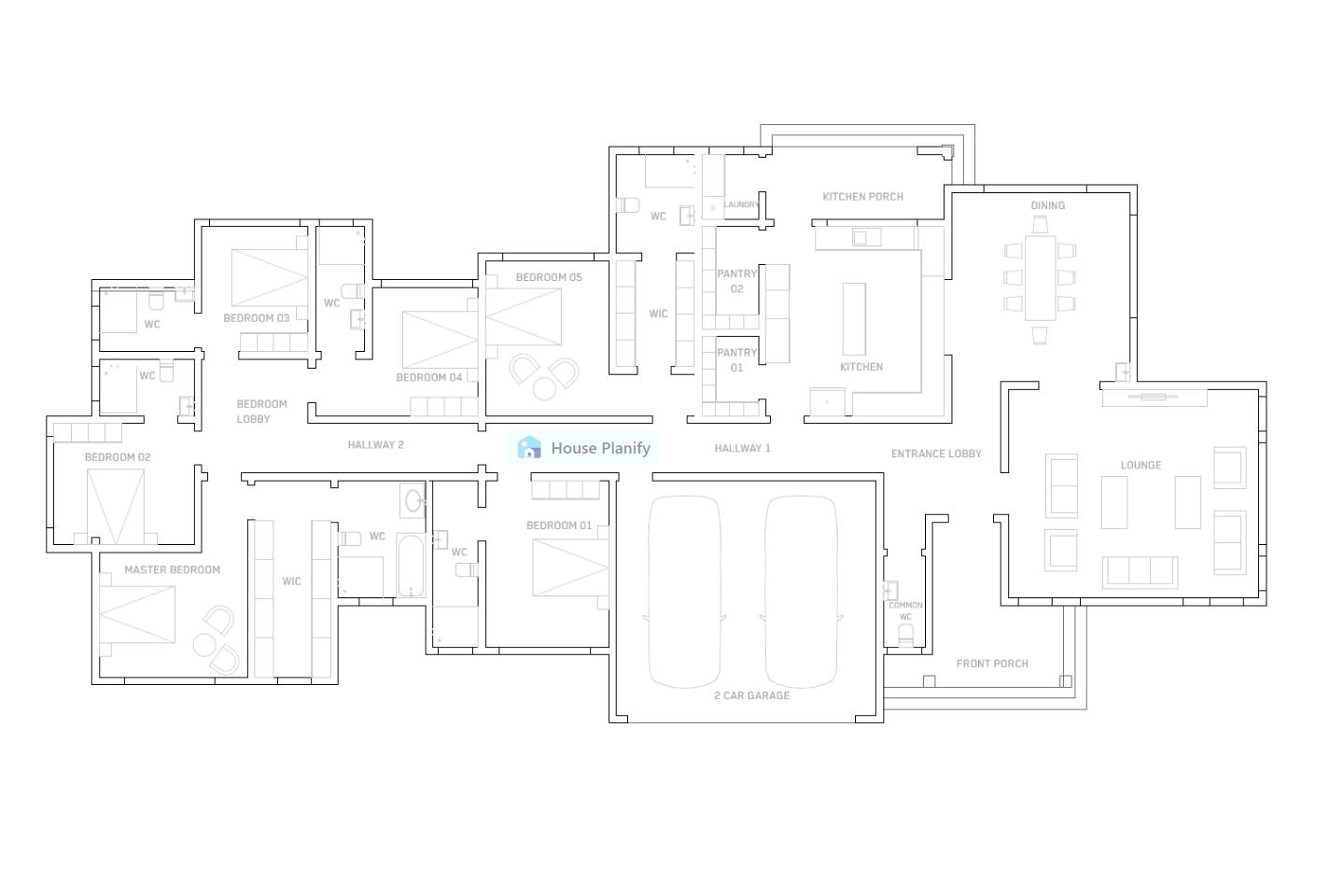
A large front porch
Entry Foyer
Large entry foyer
Lead to living room, dining and passage
Living Room
Dedicated TV Area
Large and Wide Windows for Natural Light
Generous Sitting Space
Designed for comfort an relaxation
Dining
Large dining area
Hand wash area
Kitchen
Kitchen Island
Worktops
Base Cabinets
Wall Cabinets
Wall Shelves
Gas Cooker area
Fridge
Sink Area
Large window
Pantry
2 dedicated walk in pantries
Comes with cabinet pantry
Shelving and storage
Laundry/ Utility
Dedicated walk laundry with washer and dryer
Comes with cabinet pantry
Kitchen Porch
Large kitchen porch at the back
Passage
A passage links the bedroom, bath and the Kitchen, living room, dining with the main entrance foyer
Visitor’s Cloak/ Powder Room
1 cloakroom for visitors
Master Bedroom
1 Master Bedroom
Ensuite
With Bathtub
Walk in Closet
Spacious
Secondary Bedrooms
5 other Bedrooms
All ensuite
Built in Wardrobe
Shower and WC in Bath
Bedroom 05 comes with Walk in Closet
Spacious bedrooms
Garage
2 Car garage
Secondary Entry from inside the house
With sectional steel door
Other Features
Efficient Circulation system
Structure
Reinforced Concrete Columns
Natural Stone strip foundation
Reinforced concrete strip foundation footing
Reinforced concrete ground floor slab
Masonry walling
RC beam
Treated wood roof trusses
Lighting and Electricals
Ceiling Lights
Wall Lights
Feature lighting in living room
Fluorescent ceiling light in kitchen
Waterproof external wall lights.
Multiple power outlets per room
Dedicated TV outlet
Heavy duty power outlets in kitchen and laundry
Two way electrical light switches in bedrooms
Two way light switches in living room,. kitchen and dining
Garage steel door motor
Plumbing
Hot and cold water system
Solar water heater
Robust Septic system
Cold water storage tank
Inspection chambers
Materials and Finishes
Non slip ceramic floor tiles in porches
Matt Ceramic floor tiles
1st grade wall paint
Gypsum celing board
Non slip ceramic tiles in wet areas
Polished Ceramic wall tiles in kitchen
Glossy ceramic wall tiles in bath and other wet areas
Machine polished terrazzo in Garage








Reviews
There are no reviews yet.